First Floor Plan
Exterior
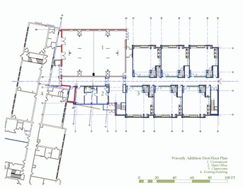
Waverly School was kindergarten only. The project added 12 classrooms, a 2 station gym and administrative offices. Waverly now houses all kindergarten and first grade students in the District. With first graders moving to Waverly, overcrowding at Greenvale and Anne Hutchinson Schools was eliminated. The project included a complete redesign of the site including new playfields, parking and retaining walls.
First Floor Plan
Exterior