Ernest Harris Architects
Site Navigation
[Skip]
Home
About EHA
Project Types
Educational
Adelphi Academy
The Caedmon School
Eastchester High School
Photos
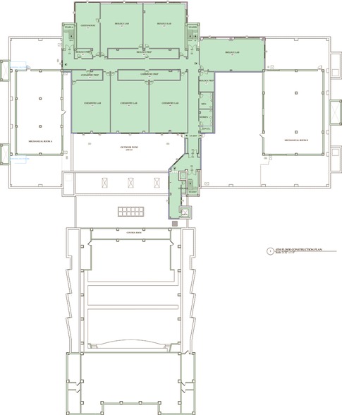
Fordham Preparatory School
Photos & Drawings
Fourth Floor
Hall of Honor Display
Fordham University
Preston High School
Photos & Drawings
Regis High School
Photos & Drawings
Courtyard Elevation
St. Catharine's School
Photos
St. Ignatius Loyola School
St. Peter's Preparatory School
Photos & Drawings
The Ursuline School
Photos & Drawings
Waverly School
Xavier High School
Photos
Residential
Prospect Park Residence
Photos
Fort Schuyler House
Katz-Hargis House
Photos, Drawings, Model
50 Melrose Drive
Photos
Commercial
FAO Schwarz
Saatchi & Saatchi
591-5 Broadway
Photos & Drawings
Mercer Street Elevation
6th Floor Office
Community
Litewska Street Children's Hospital
Mamaroneck United Methodist Church
Presbyterian Church of New Rochelle
Historic Preservation
Sustainability
Principal
Contact
contact us
Fourth Floor
Previous
Next
List
eharris@ernestharrisarchitects.com
© ernest harris architects 2014
[Back To Top]